














4, Zweigstrasse, Bernrainzelg, Kreuzlingen, Bezirk Kreuzlingen, Thurgau, 8280, Schweiz
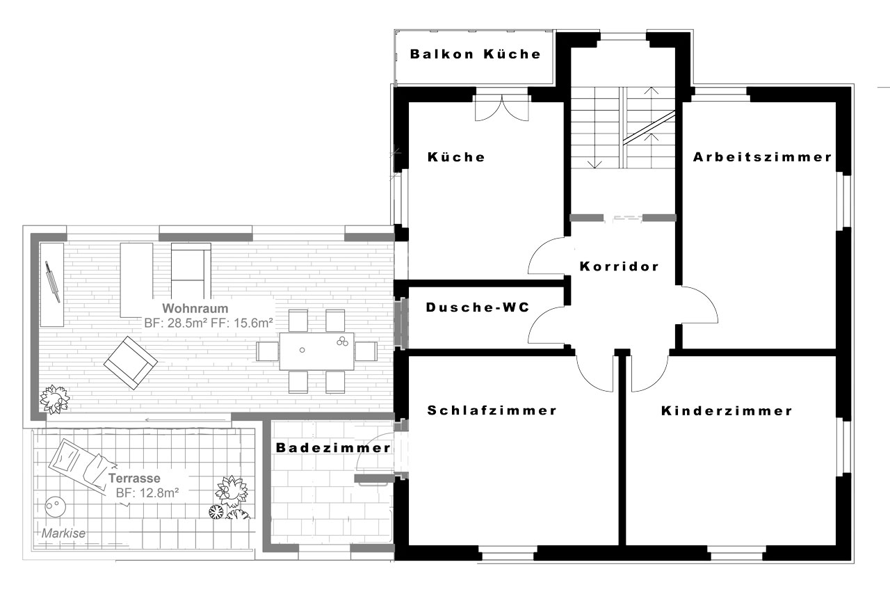
Entdecken Sie diese grosszügige 4.5-Zimmer-Wohnung mit 107 m² Wohnfläche im 1. Stock eines charmanten Altbaus an der Zweigstrasse 4 in Kreuzlingen. Die Wohnung wurde vollständig renoviert und bietet modernen Wohnkomfort in ruhiger Lage.
Die Wohnung überzeugt mit:
Ausstattung und Komfort: Die Wohnung verfügt über Kabel-TV, einen eigenen Parkplatz (15’000 zusätzlich) und ist haustierfreundlich sowie kinderfreundlich ausgestattet. Die Lage ist sonnig und sehr ruhig.
Perfekte Lage: Nur 2 Minuten zu Fuss zur Bushaltestelle Remisbergstrasse, 6 Minuten zum Supermarkt PEP-Lebensmittel und zur Pädagogischen Maturitätsschule. Der Kindergarten ist in nur 100 Metern Entfernung erreichbar. Der Kreuzlinger Hafen ist in 12 Minuten zu Fuss erreichbar.
Diese Wohnung bietet die ideale Kombination aus modernem Wohnkomfort, familienfreundlicher Ausstattung und hervorragender Infrastruktur. Perfekt für Familien oder Paare, die Wert auf Qualität und eine ruhige Wohnlage legen.
CHF 1'590
Hinzugefügt: 9. Februar 2026
Auf Anfrage
Hinzugefügt: 10. Januar 2026
CHF 1'895
Hinzugefügt: 9. Januar 2026